
Жилой дом Private Residence от Archiplan Studio
Private Residence – интригующий частный особняк, построенный по проекту Archiplan Studio. Уникальный закрытый фасад дома скрывает от взглядов прохожих частную жизнь его обитателей, открываясь свету только со стороны небольшого частного дворика.

Жилой дом Private Residence от Archiplan Studio
Дом построен между площадью и церковью небольшой итальянской деревни, расположенной в долине реки.

Жилой дом Private Residence от Archiplan Studio
Просторное остекление внутреннего фасада обеспечивает помещения достаточным количеством естественного света, проникающего из внутреннего дворика с зеленой растительностью.

Жилой дом Private Residence от Archiplan Studio
Со стороны улицы здание защищено непроницаемой минималистской стеной, узкое вертикальное отверстие в которой является входом.

Жилой дом Private Residence от Archiplan Studio
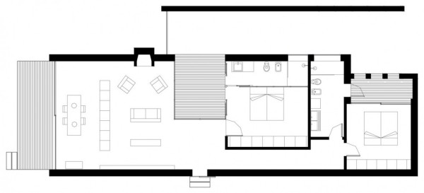
Актуальный минималистский дизайн внешнего фасада визуально самодостаточен и воспринимается в качестве современного арт-объекта. Интерьеры продолжают развивать лаконичный дизайн экстерьера – максимизация свободного пространства, встроенные решения и минимум декора.

Жилой дом Private Residence от Archiplan Studio

Жилой дом Private Residence от Archiplan Studio

Жилой дом Private Residence от Archiplan Studio
С творчество авторов проекта можно познакомиться, посетив официальный сайт их архитектурной студии: http://www.archiplanstudio.com/
Источник: